Bauen Sporthalle

Standortvariante D

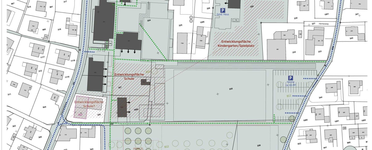
Die Standortvariante D liegt in der Verlängerung der bestehenden Schulanlage Richtung Süden/ Landwirtschaftszone

Die Standortvariante D liegt in der Verlängerung der bestehenden Schulanlage Richtung Süden.

VorteileNachteile
+ Nähe/ Einbindung Schulanlage– Entfernung/ Anbindung Hermenparkplatz
+ keine Tangierung der Aussensportanlagen– Landverbrauch Erschliessung
+ Raumplanerische Reserveflächen Schulanlage (Erweiterbarkeit)– Ersatzpflanzung objektgeschützte Obstbäume
+ eigenständige Erschliessung via Sammelstrasse (Ausserdorfstrasse)– zusätzliche Parkplätze in Hallennähe nötig
möglicher Standort D mit Blick Richtung Schulanlagen
Blick von Spielwiese Richtung möglichen Standort D

Dokument

Machbarkeitsstudie_Sporthalle

Standortvarianten
Standortvarianten Sporthalle A – E

Haben Sie Fragen oder eine Anregung zur Standortvariante D? Schreiben Sie unten ins Kommentarfeld.


4 Kommentare zu “Standortvariante D

  1. Avatar von Toni Huber
    Toni Huber

    Ich bin für die Variante D. Diese Variante ermöglicht bei Bedarf den Bau neuer Schulräume (Entwicklungsfläche Schule), welche sehr nahe an den bestehen Schulräumen sind. Ich bin überzeugt, dass wir in naher Zukunft zusätzlichen Schulraum benötigen.
    Die Sporthalle Variante D ist gut zu erschliessen und für die Schüler auf kurzem Weg zu erreichen. Ein Verkehrskonzept mit möglichst wenigen Parkplätzen ist vorzusehen.
    Die bestehende Turnhalle soll auch nach der Sanierung als Mehrzweckhalle und als Turnhalle für kleinere Gruppen genutzt werden.
    Die Fläche hinter dem Gemeindehaus/Zopfhuus ist bestens geeignet für weitere Kindergarteneinheiten mit optimalem Spielplatz.
    Die Variante D ermöglicht aus meiner Sicht die bedeutend grösste Entwicklungsmöglichkeit für die zukünftige Entwicklung des Schulareals.

    Gefällt 1 Person

  2. Avatar von Pesche

    Das sehe ich auch so. Das ist die Planung, die auch in Zukunft noch stimmt.

    Gefällt 1 Person

  3. Avatar von Leckebusch Ursula
    Leckebusch Ursula

    Ich finde die Variante D wenig attraktiv, da für die Zufahrt auf keine bestehde Infrastruktur zurückgegriffen werden kann und es keine Parkplätze in der Nähe hat.

    Like

    • Avatar von Pesche

      Ideal wären ja möglichst wenig Parkplätze um die Sporthalle. Das ist dann für alle (auch Anwohner) attraktiv. Die Schüler kommen sowieso zu Fuss und am Abend können die Sportler mit Velo kommen. Oder den Parkplatz beim Schulhaus oder Hermen benutzen.

      Like

Hinterlasse einen Kommentar