Machbarkeitsstudie Sporthalle
In der Masterplanung wurden fünf Standorte rund um das Schulhaus evaluiert
In der Masterplanung wurden fünf Standorte rund um das Schulhaus evaluiert
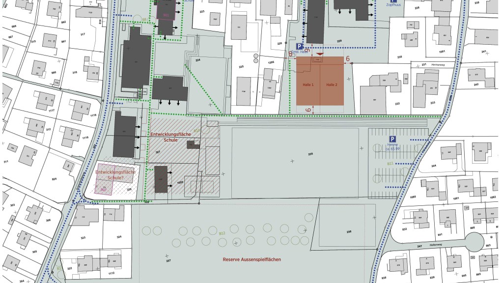
Die Standortvariante B bezieht die Restparzelle zwischen Gemeindehaus/Zopfhuus und Spielwiese ein
Diese Variante käme südlich des Hermen-Parkplatzes auf die bestehende Spielwiese zu stehen
Die Standortvariante D liegt in der Verlängerung der bestehenden Schulanlage Richtung Süden/ Landwirtschaftszone
Die Variante E überlegt sich einen Standort neben dem Hermen-Parkplatz auf dem kleinen Rasenspielfeld
Der Gemeinderat entschied das Projekt „Neubau der Sporthalle“ mittels eines Gesamtleistungswettbewerbs durchzuführen
Wie es nun weitergeht mit der Masterplanung
Am Mittwoch, 31. Oktober traf sich die «Begleitkommission Sporthalle» zum ersten Mal







