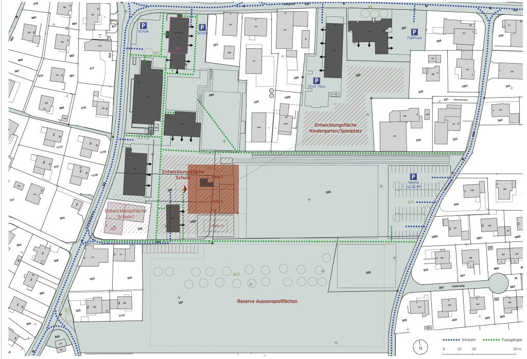
Teil der Masterplanung ist es, den optimalen Standort für die künftige Doppel-Sporthalle zu ermitteln. Dabei wurden fünf Standorte rund um das Schulhaus in der bestehenden Zone für öffentliche Bauten evaluiert. Die fünf Standortvarianten werden detailliert gezeigt.
Dokument
Pläne zum Vergrössern anklicken






Haben Sie Fragen oder Anregungen? Benutzen Sie das Kommentarfeld unten an der Seite.
Umfrage: Nehmen Sie an unserer Umfrage zu den Standortvarianten teil.
Beitragsbild: Blick auf Aussensportanlagen/Öffentliche Zone (Foto gz)

0 Kommentare zu “Machbarkeitsstudie Sporthalle”