Machbarkeitsstudie Sporthalle
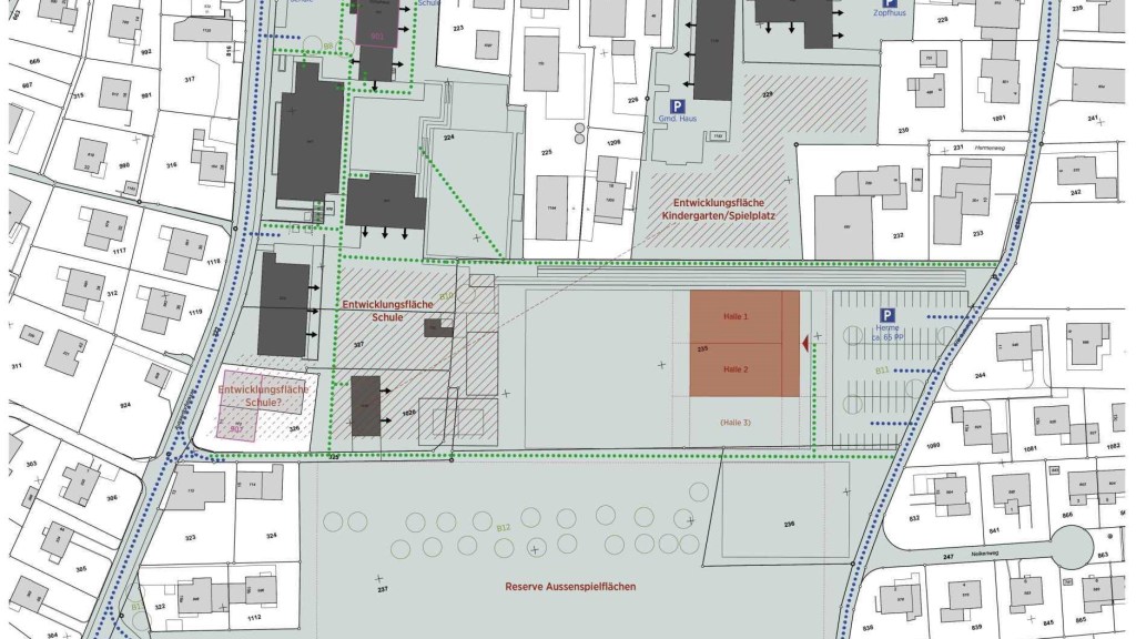
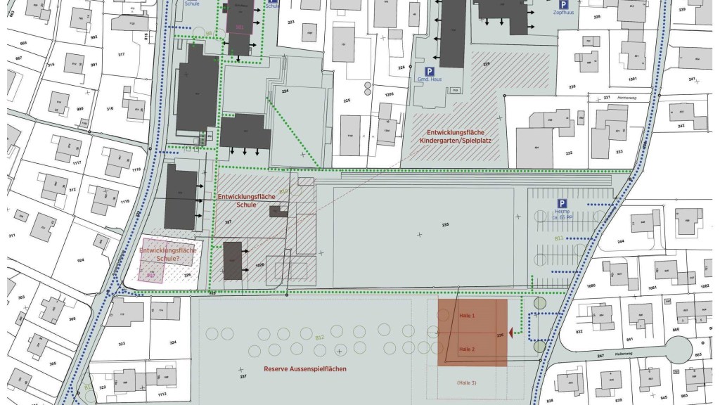
In der Masterplanung wurden fünf Standorte rund um das Schulhaus evaluiert
In der Masterplanung wurden fünf Standorte rund um das Schulhaus evaluiert
Die Variante A käme nördlich des Ausserdorfschulhauses im Bereich der heutigen Kugelstossanlage und der Beachvolleyanlage zu stehen
Die Standortvariante B bezieht die Restparzelle zwischen Gemeindehaus/Zopfhuus und Spielwiese ein
Diese Variante käme südlich des Hermen-Parkplatzes auf die bestehende Spielwiese zu stehen
Die Standortvariante D liegt in der Verlängerung der bestehenden Schulanlage Richtung Süden/ Landwirtschaftszone
Die Variante E überlegt sich einen Standort neben dem Hermen-Parkplatz auf dem kleinen Rasenspielfeld
Bei den Gemeindeliegenschaften wurden Zustand, Nutzung und Potenzial erhoben…
Der Gemeinderat hat das Programm freigegeben







