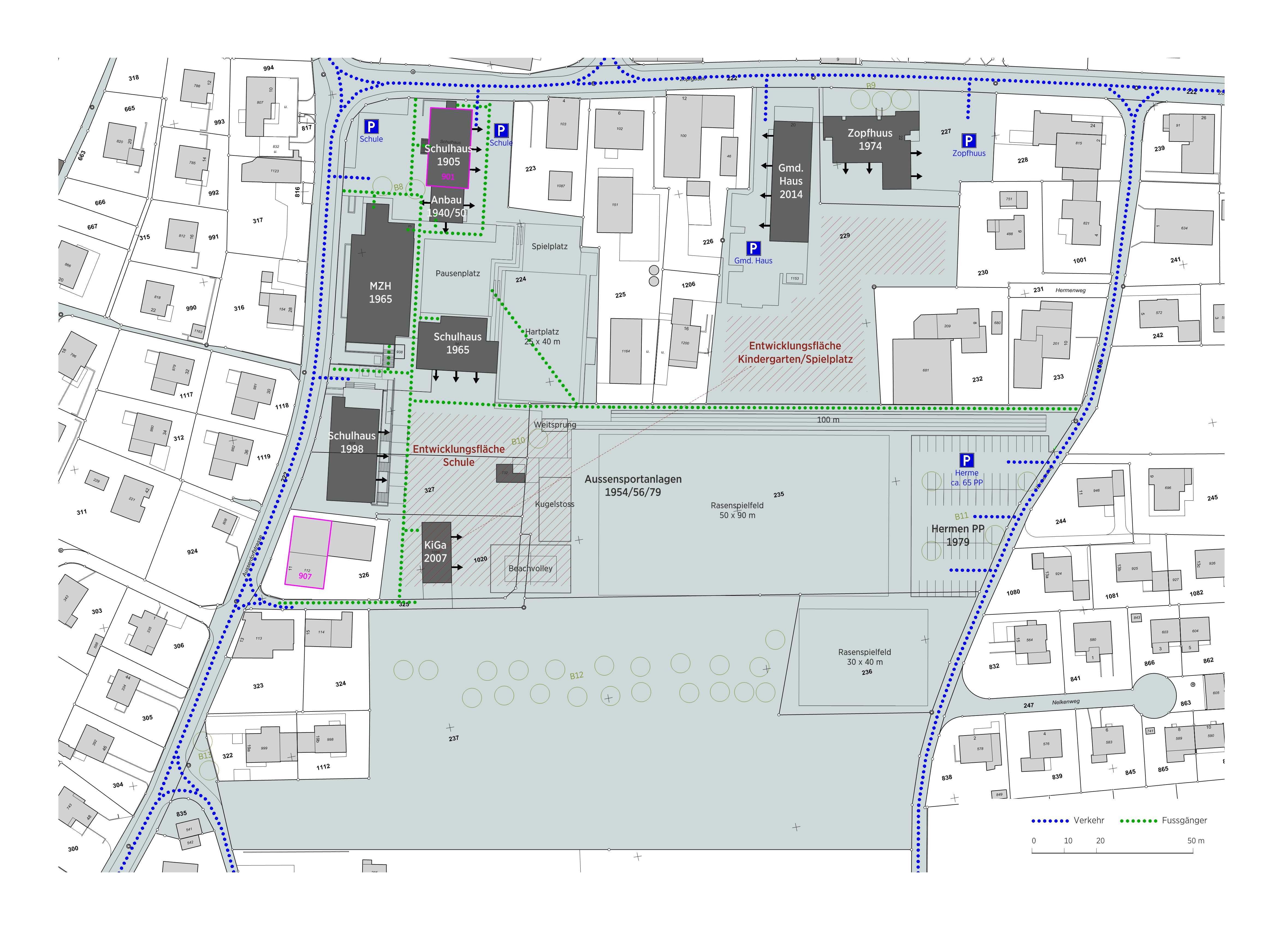
Der Platz in den Schulhäusern von Staufen wird ab dem Schuljahr 2022/23 von den Klassen der Primarschule belegt. Deshalb projektiert der Gemeinderat einen neuen Doppel-Kindergarten. Laut Masterplan soll dieser auf der Restparzelle 229 (Entwicklungsfläche Kindergarten/Spielplatz) an der Zopfgasse zwischen Gemeindehaus/Zopfhuus sowie Sportplatz geplant werden. Da wo im Moment noch Bauer Furters Kühe weiden, ist der neue Kindergarten geplant.

Die Berechnungen der künftigen Kinderzahlen -basierend auf der aktuellen Geburtenliste- zeigen, dass die Kinderzahl in Kindergarten und Primarschule Staufen in den nächsten Jahren stark zunimmt. Die Höchstzahl pro Abteilung gemäss Schulgesetz beträgt 25 Kinder.
| Schuljahr | 2019/20 | 2020/21 | 2021/22 | 2022/23 | 2023/24 | 2024/25 |
| Kinder- garten | 80 Kinder 4 Abt. | 101 Kinder 5 Abt. | 100 Kinder 5 Abt. | 98 Kinder 4-5 Abt. | 101 Kinder 5 Abt. | ? 5. Abt. |
| Primar- schule | 202 Kinder 10 Abt. | 198 Kinder 10 Abt. | 214 Kinder 12 Abt. | 235 Kinder 13 Abt. | 247 Kinder 13 Abt. | 270 Kinder 13-14 Abt. |
Bis der neue Doppel-Kindergarten bezogen werden kann, werden die 4. Abteilung des Kindergartens sowie eine allfällige 5. Abteilung in den bestehenden Schulräumlichkeiten geführt.

An der Gemeindeversammlung im November 2019 wird ein Projektierungskredit von CHF 175’000 beantragt. Damit soll ein Gesamtleistungswettbewerb durchgeführt werden. Der Wettbewerb wird so ausgeschrieben, dass eine allfällig spätere Erweiterung auf einen Dreifach-Kindergarten möglich ist.
Foto Christof Remensberger

0 Kommentare zu “Ein neuer Doppel-Kindergarten?”